Book a Property Valuation

Bull Inn, Pentraeth, Anglesey, LL75


Price £120,000

0
0
0

Overview

Land for sale in Bull Inn, Pentraeth, Anglesey, LL75

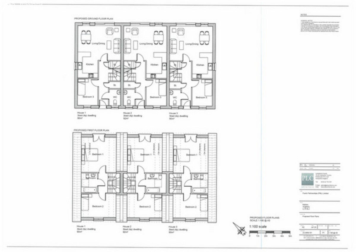
Attention developers and builders alike as Williams & Goodwin are delighted to offer this good sized parcel of land which has obtained full planning consent in March 2024 for a terrace of 3 houses [with one to be offered as an affordable unit]

An opportunity to acquire a freehold development prospect being offered for sale with the benefit of full planning consent granted in March 2024 under the application number ref FPL/2023/246. This particular parcel of land provides a good sized plot with access provided over part of the adjoining public house car park for which there will be a shared responsibility to maintain. Located on the outskirts of the village the site is set back off the road from Pentraeth to Benllech and is within 0.5 mile of the village centre with its local shops, primary school and other amenities. Numerous sandy beaches are also located within 2 miles making this an ideal location to take advantage of the surro... Read more

Important Information

  • This is a Freehold property.

Key Info

  • Building Plot with Full Planning Consent ref FPL/2023/246
  • Planning for Terrace of 3 Houses, 1 being Affordable
  • Each House with Open Plan Living Room/Kitchen
  • Ground Floor Bedroom, plus 2 First Floor Bedrooms
  • Village Location close to Local Amenities and Beaches within 1 Mile
  • EPC: N/A / Council Tax: N/A

Sorry! There are no available floor plans for this property.

Rhedyw Road, Llanllyfni, Gwynedd, Ll54

3 Bedroom Terraced House

Rhedyw Road, Llanllyfni, Gwynedd, LL54

Plas Coch, Llanfairpwllgwyngyll, Anglesey, Ll61

3 Bedroom Lodge

Plas Coch, Llanfairpwllgwyngyll, Anglesey, LL61

Llanllyfni, Llanllyfni, Gwynedd, Ll54

2 Bedroom Cottage

Llanllyfni, Llanllyfni, Gwynedd, LL54

Ffordd Glyder, Y Felinheli, Gwynedd, Ll56

2 Bedroom Flat

Ffordd Glyder, Y Felinheli, Gwynedd, LL56

Water Street, Penygroes, Gwynedd, Ll54

2 Bedroom Terraced House

Water Street, Penygroes, Gwynedd, LL54

Strand Street, Bangor, Gwynedd, Ll57

2 Bedroom Terraced House

Strand Street, Bangor, Gwynedd, LL57



Mortgage Calculator


Yr
Please fill out all of the fields to receive an estimate
Amount Borrowed: £200,000
Term: 25 years
Interest rate: 3.5%
Total Monthly Payment:
£1,001.25
Total amount repayable:
£300,374
Arrange a Viewing Printable Details Request a Phone Call Request Details E-Mail Agent Stamp Duty Calculator

Pwy ydym ni?

Mae Williams & Goodwin The Property People yn aelodau o’r Gymdeithas Gweithwyr Eiddo Proffesiynol, Cymdeithas Genedlaethol y Gwerthwyr Tai, y Gymdeithas Asiantwyr Gosod Preswyl a Chymdeithas Genedlaethol y Priswyr a’r Arwerthwyr. Rydym hefyd yn Syrfewyr Prisio Siartredig ac yn aelod o Rwydwaith Cenedlaethol o tua 800 o Asiantau Tai annibynnol.

Mwy amdanom ni






Cyfieithwyd y wefan hon gan Bla Translation Ltd
mail@bla-translation.co.uk
www.bla-translation.co.uk

Cysylltu â ni

Eisiau gwybod mwy am Williams & Goodwin a’r gwasanaethau rydym yn eu cynnig, ffoniwch neu anfonwch e-bost atom heddiw.

Caernarfon - 01286 677 775
Bangor - 01248 355 333
Llangefni - 01248 751 000
Holyhead - 01407 760 500
Property Management - 01248 72 40 40
All Wales Auction - 01248 75 39 39

Cliciwch ymai weld manylion llawn ein swyddfeydd


 
 
 
©2026 Williams & Goodwin The Property People Cymru. All rights reserved. Terms and Conditions | Privacy Policy | Cookie Policy | Members Login
Registered in England & Wales. 
Update Cookies Preferences